Projekt domu Allegro 3

Autor projektu arch. Tomasz Sobieszuk
Projekt domu
Allegro 3
7 049 zł 6 649 zł
Najniższa cena 30 dni przed promocją 6549 zł
Do końca PROMOCJI pozostało
Kosztorys
-200
Dziennik
GRATIS !
  • Projekt na zapytanie
  • Bezpłatna wysyłka
  • Zwrot/wymiana 14 dni

Porozmawiaj o projekcie

wyślij pytanie

Dane techniczne

  • powierzchnia użytkowa 315.57 m²
  • powierzchnia garażu 31.59 m²
  • powierzchnia piwnicy 146.49 m²
  • powierzchnia zabudowy 252.63 m²
  • powierzchnia dachu 410.00 m²
  • kubatura 1940.00 m³
  • wysokość 9.67 m
  • min. gabaryty działki 29.85 × 23.42 m
  • EP 62.68 kWh/(m²rok)

Technologia i rodzaj zabudowy

zabudowa: jednorodzinny z użytkowym poddaszem
ściany: 2-warstwowe - YTONG 24 cm + styropian
stropy: żelbetowe, wylewane
dach: dachówka ceramiczna, kąt nachylenia 40°
ogrzewanie: gazowe, pakiet "Kotłownia na paliwo stałe", olejowe

Piwnica

Projekt domu Allegro 3 - rzut piwnicy

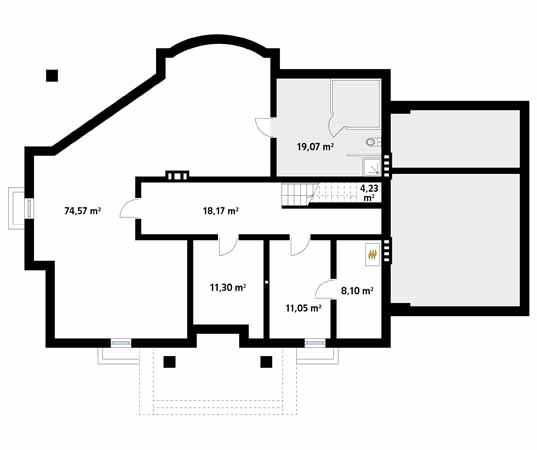
Parter

Projekt domu Allegro 3 - rzut parteru

Poddasze

Projekt domu Allegro 3 - rzut poddasza

Usytuowanie na działce:

Projekt domu Allegro 3 - usytuowanie na działce
pobierz rzut 1:500
rysunki szczegółowe ikona

Rysunki szczegółowe

Jeśli chcesz otrzymać bezpłatne rysunki szczegółowe tego projektu, wypełnij formularz.
Rysunki zostaną przesłane na podany adres e-mail.
Jeśli jesteś naszym Partnerem i chcesz pobrać rysunki szczegółowe - kliknij tutaj »
Pobierz bezpłatnie
radaptacja projektu ikona

Adaptacja projektu
wraz z projektem zagospodarowania działki

W celu uzyskania pozwolenia na budowę należy dokonać adaptacji projektu do warunków miejscowych oraz uzupełnić go o projekt zagospodarowania działki.


Jeżeli jesteś zainteresowany adaptacją projektu w naszym biurze wyślij zapytanie.

Wyślij pytanie
koszty budowy ikona

Orientacyjne koszty budowy

Poziom cen netto: Sekocenbud I kw 2010, dostawcy, producenci
7%
67%
26%
stolarka okienna i drzwiowa
23 786 zł
stan surowy otwarty
(ściany konstrukcyjne i działowe, konstrukcja dachu z pokryciem)
234 760 zł
stan zerowy
(fundamenty i ściany fundamentowe)
91 840 zł
∑ =
stan surowy zamknięty
(bez instalacji)
350 386 zł
Pobierz szacunkowe koszty budowy
ZOBACZ ZESTAWIENIE MATERIAŁÓW

Bezpłatny PAKIET DODATKÓW

dodatek Rzut w skali 1:500
Rzut w skali 1:500
pobierz
dodatek Charakterystyka energetyczna
Charakterystyka energetyczna
dodatek Zgoda na zmiany
Zgoda na zmiany
dodatek Dziennik budowy
Dziennik budowy
dodatek Pakiet kotłownia na paliwo stałe
Pakiet kotłownia na paliwo stałe
dodatek BIOZ
BIOZ

Dodatki w DOBREJ CENIE

Zamów razem z projektem
dodatek Kosztorys budowlany
Kosztorys budowlany
1000zł 800
dodatek Dodatkowy egzemplarz projektu
Dodatkowy egzemplarz projektu
2115
dodatek Elektroniczna wersja projektu
Elektroniczna wersja projektu
1057
dodatek Schemat szamba
Schemat szamba
70zł 60
dodatek Schemat rekuperacji
Schemat rekuperacji
1200
dodatek Pompa ciepła
Pompa ciepła
Na zapytanie
logo New House

Pobierz wycenę w 3 minuty

Bezpłatna wycena
logo Wolf Haus

Budowa domu - bezpłatna wycena firmy Wolf Haus

Zapraszamy Państwa do wypełnienia poniższego formularza. Dzięki niemu przygotujemy Państwu pełną ofertę na budowę wymarzonego domu.
Bezpłatna wycena

Bezpłatna wycena poszczególnych etapów budowy

System grzewczy
grafika Viessmann
wypełnij
Więźba dachowa
grafika Mitek
wypełnij
Zmiany w projekcie
grafika Mtmstyl
wypełnij

Opis do projektu Allegro 3

Duży, podpiwniczony dom dla wieloosobowej rodziny.W piwnicy duże pomieszczenie do wykorzystania do dowolnych celów.

Inne wersje projektu Allegro 3

Projekty podobne do projektu Allegro 3

Komentarze o projekcie

  • + Dodaj zdjęcia
  • Chcę otrzymywać prywatne wiadomości
  • Realizując obowiązek Administratora określony w treści art. 13 Rozporządzenia Parlamentu Europejskiego i Rady (UE) 2016/679 z dnia 27 kwietnia 2016 r. w sprawie ochrony osób fizycznych w związku z przetwarzaniem danych osobowych i w sprawie swobodnego przepływu takich danych oraz uchylenia Dyrektywy 95/46/WE (ogólne rozporządzenie o ochronie danych, RODO) (Dz.Urz.UE.L Nr 119, str. 1, ze zm.), informuję iż: rozwiń