Zapraszamy Państwa do wypełnienia poniższego formularza. Dzięki niemu przygotujemy Państwu pełną ofertę na budowę wymarzonego domu.
Bezpłatna wycena
Bezpłatna wycena poszczególnych etapów budowy
System grzewczy
wypełnij
Więźba dachowa
wypełnij
Zmiany w projekcie
wypełnij
Opis do projektu Grafit
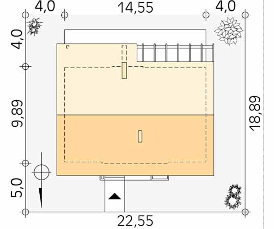
Parterowy dom jednorodzinny, idealny dla 4-osobowej rodziny. Projekt na pewno zaspokoi potrzeby inwestorów planujących budowę małego, energooszczędnego i nowoczesnego domu. Częściowo otwarty dach w elewacji ogrodowej ułatwi ciekawą aranżację ogrodu. Osoby towarzyskie z pewnością docenią zadaszony taras z miejscem na zewnętrzny kominek (grill). W projekcie zadbano o optymalne wykorzystanie przestrzeni.
Witam czy ktoś buduje lub już mieszka?? chciałabym zobaczyć jak wygląda może ktoś posiada jakieś zdjęcia . Ja będę dopiero budować województwo mazowieckie . Pozdrawiam
Agata
Mam ten dom, dokonałam tylko drobnych zmian (tylko tarasowe okna mam duże,pozostałe zmieniłam na typowe; z tyłu w części tarasowej mam na całości jednolity dach). Jak dla nie rewelacja,jestem bardzo zadowolona. Na zewnątrz nie wygląda na duży, ale wewnątrz czuć przestrzeń .Jestem mega zadowolona , szczerze polecam :)
Mariusz Kowalewski
Witam czy ktoś może ma ten domek z piwną i z adaptacją poddasza ciekaw jestem gdzie można umieścić schody ?
Michał
Buduję ten domek wraz z dostawionym do niego garażem,narazie jestem na etapie stanu surowego otwartego więc jak ktoś chce zobaczyć to zapraszam do miejscowości Sławsk w Wielkopolsce fotki też mogę podesłać na maila. Pozrawiam
WM
Witam
Jestem zainteresowany budową tego domu, czy ktoś z Państwa już ukończył budowę (stan surowy) w województwie mazowieckim lub łódzkim? Proszę o informację na emaila, chętnie bym zobaczył projekt w realu. Dziękuję.
karol74
buduje domek w wlkp
Kasia
Też zdecydowaliśmy się na ten projekt :)
arch. Elżbieta Wysocka MTM Styl
Witam,
w naszej ofercie posiadamy projekty garaży wolnostojących. Jeśli chce Pani doprojektować garaż do tego domu można to zrobić na etapie adaptacji projektu. Nasza pracownia może także, po uprzednim ustaleniu ceny i terminu, podjąć się tego zadania.
Luiza Pawłowska
Witam,
czy macie Państwo w swojej ofercie projekt garażu do tego domku? Interesuje mnie garaż dostawiany z lewej strony z przejściem w środku z domu do garażu- od strony kuchni.
Mariola
Też wybraliśmy ten projekt i wkrótce zaczynamy budowę. Podczas adaptacji nieco zmieniliśmy układ pomieszczeń, dodaliśmy sień i częściowo podpiwniczyliśmy.
Mariola
Małgorzata Kowalczyk
Przepiękny !
Czy można po zrobieniu schodów na górę wygospodarować antresolę na poddaszu ?
Małgorzata
arch. Elżbieta Wysocka MTM Styl
Witam,
Pani Natalio, w naszej ofercie domów parterowych mamy dwa, które posiadają piwnicę , są to LARA 6 i KAPRYS 2. Rzadko stosujemy takie rozwiązanie ponieważ nie cieszy się popularnością, może dlatego, że piwnica jest dość kosztowna a małe domy parterowe wybierane są często z powodu ich niskich kosztów budowy i użytkowania.
arch. Elżbieta Wysocka MTM Styl
Witam,
Pani Kasiu niestety nie posiadamy tego projektu w wersji szkieletu drewnianego, możemy wydać zgodę na zmianę technologii przez architekta adaptującego.
agata
Własnie kupiłam ten projekt i jestem zadowolona :)
Kasia
Czy można zakupić projekt przeznaczony do realizacji w konstrukci drewnianej szkieleltowej? Bardzo proszę o odpowiedź.
Natalia Kwiatkowska
szkoda,że trzeba by było zlikwidowąć wc,ale serdecznie dziekuje za odpowiedz.szukałam na waszej stronie projektow domów parterowych z podpiwniczeniem ale nie znalazlam takowych,czy moge liczyc na to ze cos sie zmieni w tej sprawie?
pozdrawiam
Tomasz Siemieniuk, MTM Styl
Tak, schody można zrobić też w tym miejscu. By je zmieścić trzeba zlikwidować pomieszczenie gospodarcze i wc oraz nieznacznie przesunąć komin w stronę łazienki.
pozdrawiam
Natalia Kwiatkowska
mi najbardziej zależałoby żeby to wejście znalazło się w tym pomieszczeniu gospodarczym po prawej stronie(3m),tylko nie wiem czy tak dałoby rade bo niestety nie mam orientacji.co pan o tym sądzi?
Tomasz Siemieniuk, MTM Styl
Witam
Można ten dom podpiwniczyć, trzeba tylko zrobić schody do tej piwnicy. Mogą one się znaleźć w miejscu dużej łazienki, wtedy łącząc kotłownię z wc powstałaby łazienka. Można też poprzesuwać cienkie ściany działowe i pozmieniać nieco układ. Jedyna trudność to te schody właśnie bo poza tym można zrobić tą piwnicę dość dowolnie i tyle pomieszczeń ile potrzeba.
pozdrawiam
Natalia Kwiatkowska
i ewentualnie zeby wygospodarowac troszke miejsca na pomieszczenie z przetworami.ogolnie zeby bylo to ze 30m,wydaje mi sie ze spokojnie by wystarczylo
Natalia Kwiatkowska
witam mam pytanie do architektów.bardzo spodobal nam sie ten projekt tylko chcielibysmy umiescic oprocz pieca gazowego,piec na paliwo stale np na wegiel lub ekogroszek,tak wiec czy daloby sie choc troche podpiwniczyc dom i zrobic wejscie z pomieszczenia gospodarczego?zalezy nam przynajmniej na dwoch nieduzych pomieszczeniach zeby w jednym umiescic piec chyba na ekogroszek bo wtedy sie nie kopci a w drugim zrobic pralnie.bardzo prosze o szybka odpowiedz i jesli da rade to ile mniej wiecej by to kosztowalo?pozrawiam serdecznie
Luiza Pawlowska
Właśnie zakupiłam ten projekt i jestem zadowolona. Polecam.
Lista kategorii, w których można znaleźć projekt Grafit
Jeśli chesz otrzymać bezpłatne rysunki szczegółowe projektu, wypełnij formularz. Rysunki zostaną przesłane na podany adres e-mail. Uwaga! Jeśli nie otrzymałeś wiadomości w przeciągu 15 minut sprawdź folder ze spamem.
Zostaw nam swój numer telefonu, a skontaktujemy się z Tobą i poinformujemy, jaki jest termin ukończenia projektu.
Jeśli zostawisz nam swój adres e-mail, otrzymasz powiadomienie o dostępności projektu Grafit. W momencie gdy projekt będzie gotowy wyślemy Ci wiadomość.
Więcej informacji pod numerem telefonu: 577 007 206
Wprowadzenie zmian w projekcie gotowym jest możliwe. Nasza pracownia wyraża bezpłatną zgodę na następujące zmiany:
dostosowanie fundamentów do warunków geotechnicznych w miejscu posadowienia budynku
realizacja budynku w lustrzanym odbiciu
zmiana technologii wykonania domu: materiałów ściennych, izolacyjnych i wykończeniowych przy spełnieniu wymaganych normą własności użytkowych ścian
zmiany wymiarów rzutu poziomego budynku w granicach 5%
zmiana rodzajów stropów przy zachowaniu układu konstrukcyjnego oraz wymaganej wytrzymałości
zmiana pokrycia dachowego na ciężkie po dostosowaniu konstrukcji budynku do zwiększonego ciężaru pokrycia dachowego
zmiana kąta nachylenia dachu w granicach 5 °
podpiwniczenie budynku lub rezygnacja z podpiwniczenia
zmiana lokalizacji ścian działowych i wewnętrznych otworów drzwiowych (przy zachowaniu nośności elementów konstrukcyjnych budynku)
zmiana wykonania wewnętrznych instalacji sanitarnych i elektrycznych zgodnie z uzyskanymi warunkami zapewnienia dostaw mediów do budynku mieszkalnego
zmiana ilości, wielkości i usytuowania otworów okiennych i drzwiowych
Inne zmiany, które nie zostały uwzględnione w standardowej zgodzie wymagają odrębnej zgody pracowni. Prosimy o ich podanie podczas składania zamówienia na projekt.
Autorzy projektu wykazali się dbałością o optymalne wykorzystanie dostępnej przestrzeni, dlatego dom charakteryzuje się wyraźnym podziałem na strefy dzienną i nocną. Optymalny, energooszczędny i nowoczesny dom.
Witam czy ktoś buduje lub już mieszka?? chciałabym zobaczyć jak wygląda może ktoś posiada jakieś zdjęcia . Ja będę dopiero budować województwo mazowieckie . Pozdrawiam
Mam ten dom, dokonałam tylko drobnych zmian (tylko tarasowe okna mam duże,pozostałe zmieniłam na typowe; z tyłu w części tarasowej mam na całości jednolity dach). Jak dla nie rewelacja,jestem bardzo zadowolona. Na zewnątrz nie wygląda na duży, ale wewnątrz czuć przestrzeń .Jestem mega zadowolona , szczerze polecam :)
Witam czy ktoś może ma ten domek z piwną i z adaptacją poddasza ciekaw jestem gdzie można umieścić schody ?
Buduję ten domek wraz z dostawionym do niego garażem,narazie jestem na etapie stanu surowego otwartego więc jak ktoś chce zobaczyć to zapraszam do miejscowości Sławsk w Wielkopolsce fotki też mogę podesłać na maila. Pozrawiam
Witam Jestem zainteresowany budową tego domu, czy ktoś z Państwa już ukończył budowę (stan surowy) w województwie mazowieckim lub łódzkim? Proszę o informację na emaila, chętnie bym zobaczył projekt w realu. Dziękuję.
buduje domek w wlkp
Też zdecydowaliśmy się na ten projekt :)
Witam, w naszej ofercie posiadamy projekty garaży wolnostojących. Jeśli chce Pani doprojektować garaż do tego domu można to zrobić na etapie adaptacji projektu. Nasza pracownia może także, po uprzednim ustaleniu ceny i terminu, podjąć się tego zadania.
Witam, czy macie Państwo w swojej ofercie projekt garażu do tego domku? Interesuje mnie garaż dostawiany z lewej strony z przejściem w środku z domu do garażu- od strony kuchni.
Też wybraliśmy ten projekt i wkrótce zaczynamy budowę. Podczas adaptacji nieco zmieniliśmy układ pomieszczeń, dodaliśmy sień i częściowo podpiwniczyliśmy. Mariola
Przepiękny ! Czy można po zrobieniu schodów na górę wygospodarować antresolę na poddaszu ? Małgorzata
Witam, Pani Natalio, w naszej ofercie domów parterowych mamy dwa, które posiadają piwnicę , są to LARA 6 i KAPRYS 2. Rzadko stosujemy takie rozwiązanie ponieważ nie cieszy się popularnością, może dlatego, że piwnica jest dość kosztowna a małe domy parterowe wybierane są często z powodu ich niskich kosztów budowy i użytkowania.
Witam, Pani Kasiu niestety nie posiadamy tego projektu w wersji szkieletu drewnianego, możemy wydać zgodę na zmianę technologii przez architekta adaptującego.
Własnie kupiłam ten projekt i jestem zadowolona :)
Czy można zakupić projekt przeznaczony do realizacji w konstrukci drewnianej szkieleltowej? Bardzo proszę o odpowiedź.
szkoda,że trzeba by było zlikwidowąć wc,ale serdecznie dziekuje za odpowiedz.szukałam na waszej stronie projektow domów parterowych z podpiwniczeniem ale nie znalazlam takowych,czy moge liczyc na to ze cos sie zmieni w tej sprawie? pozdrawiam
Tak, schody można zrobić też w tym miejscu. By je zmieścić trzeba zlikwidować pomieszczenie gospodarcze i wc oraz nieznacznie przesunąć komin w stronę łazienki. pozdrawiam
mi najbardziej zależałoby żeby to wejście znalazło się w tym pomieszczeniu gospodarczym po prawej stronie(3m),tylko nie wiem czy tak dałoby rade bo niestety nie mam orientacji.co pan o tym sądzi?
Witam Można ten dom podpiwniczyć, trzeba tylko zrobić schody do tej piwnicy. Mogą one się znaleźć w miejscu dużej łazienki, wtedy łącząc kotłownię z wc powstałaby łazienka. Można też poprzesuwać cienkie ściany działowe i pozmieniać nieco układ. Jedyna trudność to te schody właśnie bo poza tym można zrobić tą piwnicę dość dowolnie i tyle pomieszczeń ile potrzeba. pozdrawiam
i ewentualnie zeby wygospodarowac troszke miejsca na pomieszczenie z przetworami.ogolnie zeby bylo to ze 30m,wydaje mi sie ze spokojnie by wystarczylo
witam mam pytanie do architektów.bardzo spodobal nam sie ten projekt tylko chcielibysmy umiescic oprocz pieca gazowego,piec na paliwo stale np na wegiel lub ekogroszek,tak wiec czy daloby sie choc troche podpiwniczyc dom i zrobic wejscie z pomieszczenia gospodarczego?zalezy nam przynajmniej na dwoch nieduzych pomieszczeniach zeby w jednym umiescic piec chyba na ekogroszek bo wtedy sie nie kopci a w drugim zrobic pralnie.bardzo prosze o szybka odpowiedz i jesli da rade to ile mniej wiecej by to kosztowalo?pozrawiam serdecznie
Właśnie zakupiłam ten projekt i jestem zadowolona. Polecam.