Projekt domu Indygo 2 dr-T

Autor projektu arch. Tomasz Sobieszuk
Projekt domu
Indygo 2 dr-T
5 349 zł 4 949 zł
Najniższa cena 30 dni przed promocją 4849 zł
Do końca PROMOCJI pozostało
Kosztorys
-200
Dziennik
GRATIS !
  • Dostępny w 24H
  • Bezpłatna wysyłka
  • Zwrot/wymiana 14 dni

Porozmawiaj o projekcie

wyślij pytanie

Dane techniczne

  • powierzchnia użytkowa 134.89 m²
  • powierzchnia zabudowy 104.03 m²
  • powierzchnia dachu 200.00 m²
  • kubatura 620.00 m³
  • wysokość 8.49 m
  • min. gabaryty działki 19.11 × 17.42 m
  • EP 69.65 kWh/(m²rok)

Technologia i rodzaj zabudowy

zabudowa: jednorodzinny z użytkowym poddaszem
ściany: drewniane, szkieletowe
stropy: belki drewniane + wełna mineralna
dach: dachówka, kąt nachylenia 40°
ogrzewanie: gazowe

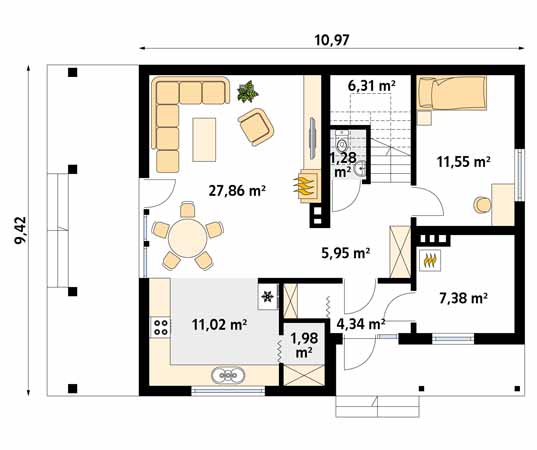
Parter

Projekt domu Indygo 2 dr-T - rzut parteru

Poddasze

Projekt domu Indygo 2 dr-T - rzut poddasza

Usytuowanie na działce:

Projekt domu Indygo 2 dr-T - usytuowanie na działce
pobierz rzut 1:500
rysunki szczegółowe ikona

Rysunki szczegółowe

Jeśli chcesz otrzymać bezpłatne rysunki szczegółowe tego projektu, wypełnij formularz.
Rysunki zostaną przesłane na podany adres e-mail.
Jeśli jesteś naszym Partnerem i chcesz pobrać rysunki szczegółowe - kliknij tutaj »
Pobierz bezpłatnie
radaptacja projektu ikona

Adaptacja projektu
wraz z projektem zagospodarowania działki

W celu uzyskania pozwolenia na budowę należy dokonać adaptacji projektu do warunków miejscowych oraz uzupełnić go o projekt zagospodarowania działki.


Jeżeli jesteś zainteresowany adaptacją projektu w naszym biurze wyślij zapytanie.

Wyślij pytanie
koszty budowy ikona

Orientacyjne koszty budowy

Poziom cen netto: Sekocenbud I kw 2014, dostawcy, producenci
6%
80%
13%
stolarka okienna i drzwiowa
10 516 zł
stan surowy otwarty
(ściany konstrukcyjne i działowe, konstrukcja dachu z pokryciem)
134 317 zł
stan zerowy
(fundamenty i ściany fundamentowe)
22 167 zł
∑ =
stan surowy zamknięty
(bez instalacji)
167 001 zł
Pobierz szacunkowe koszty budowy
ZOBACZ ZESTAWIENIE MATERIAŁÓW

Bezpłatny PAKIET DODATKÓW

dodatek Rzut w skali 1:500
Rzut w skali 1:500
pobierz
dodatek Charakterystyka energetyczna
Charakterystyka energetyczna
dodatek Zgoda na zmiany
Zgoda na zmiany
dodatek Dziennik budowy
Dziennik budowy
dodatek <span>Prefabrykowana </span> <span>w</span>ięźba dachowa
Prefabrykowana więźba dachowa
dodatek BIOZ
BIOZ

Dodatki w DOBREJ CENIE

Zamów razem z projektem
dodatek Kosztorys budowlany
Kosztorys budowlany
600zł 400
dodatek Dodatkowy egzemplarz projektu
Dodatkowy egzemplarz projektu
1605
dodatek Elektroniczna wersja projektu
Elektroniczna wersja projektu
802
dodatek Schemat szamba
Schemat szamba
70zł 60
dodatek Schemat rekuperacji
Schemat rekuperacji
650
dodatek Pompa ciepła
Pompa ciepła
Na zapytanie
logo Wolf Haus

Budowa domu - bezpłatna wycena firmy Wolf Haus

Zapraszamy Państwa do wypełnienia poniższego formularza. Dzięki niemu przygotujemy Państwu pełną ofertę na budowę wymarzonego domu.
Bezpłatna wycena

Bezpłatna wycena poszczególnych etapów budowy

System grzewczy
grafika Viessmann
wypełnij
Więźba dachowa
grafika Mitek
wypełnij
Zmiany w projekcie
grafika Mtmstyl
wypełnij

Opis do projektu Indygo 2 dr-T

Dom mieszkalny, drewniany, zaprojektowany w odpowiedzi na potrzeby inwestorów pragnących mieszkać nowocześnie. Atutem projektu jest zadaszony taras umiejscowiony od strony elewacji bocznej budynku. Na parterze zaprojektowano przestronny salon z wyjściem na taras, kuchnię ze spiżarnią, dodatkowy pokój-gabinet, toaletę i kotłownię. Na poddaszu znajdują się trzy sypialnie, garderoba i łazienka. Dwie z sypialni posiadają wyjścia na balkon.

Inne wersje projektu Indygo 2 dr-T

Projekty podobne do projektu Indygo 2 dr-T

Komentarze o projekcie

  • + Dodaj zdjęcia
  • Chcę otrzymywać prywatne wiadomości
  • Realizując obowiązek Administratora określony w treści art. 13 Rozporządzenia Parlamentu Europejskiego i Rady (UE) 2016/679 z dnia 27 kwietnia 2016 r. w sprawie ochrony osób fizycznych w związku z przetwarzaniem danych osobowych i w sprawie swobodnego przepływu takich danych oraz uchylenia Dyrektywy 95/46/WE (ogólne rozporządzenie o ochronie danych, RODO) (Dz.Urz.UE.L Nr 119, str. 1, ze zm.), informuję iż: rozwiń

Ewa Tarnowska-Wrona (DOMY w Stylu)

Pani Izabelo można poszerzyć budynek w celu wstawienia łazienki na parterze. Poszerzenie budynku spowoduje również powiększenie poddasza, co umożliwi powiększenie garderoby. Wszystkie zmiany może Pani wprowadzić w naszej pracowni bądź u architekta lokalnego w ramach adaptacji projektu.

Izabela Juszczak

Witam, czy jest mozliwość zwiększenia szerokości domu by na parterze miedzy schodami a gabinetem była łazienka z prysznicem? Jednoczenie na pietrze przesunięcie łazienki tak żeby można było powiększyć garderobę? Z góry dziękuje za odpowiedź i pozdrawiam

arch. Radosław Szpura DOMY w Stylu

Witam, wysokość od terenu do okapu wynosi 3,40m. Po zmianie wymiarów budynku, powierzchnia użytkowa wyniesie ok. 160 m2. Opracowanie projektu jest możliwe w naszym biurze lub na etapie adaptacji projektu.

Dorota Gabryś

Witam, jaka będzie powierzchnia użytkowa domu, gdy powiększymy szerokość domu na 11 m i długość na 10,80 m,czy jest możliwe wprowadzenie takich zmian. Jaka jest wysokość do okapu w tym projekcie.