Projekt domu Kaśka
- Dostępny w 5 dni
- Bezpłatna wysyłka
- Zwrot/wymiana 14 dni
- Drukuj kartę projektu
-
Dodaj do ulubionych
- Porównaj ulubione
PROJEKT W SPECJALNEJ CENIE
Prezentowany projekt na skutek ciągle zmieniających się warunków technicznych wymaga nieco więcej nakładu pracy przy adaptacji do działki. Polega to głównie na pogrubieniu izolacji cieplnej budynku oraz częściowym przeredagowaniu opisu. Projekt wciąż cieszy się zainteresowaniem dlatego jest dostępny w specjalnej cenie.
Dane techniczne
- powierzchnia użytkowa 88.50 m²
- powierzchnia garażu 16.80 m²
- powierzchnia zabudowy 88.80 m²
- powierzchnia dachu 174.00 m²
- kubatura 485.00 m³
- wysokość 8.10 m
- EP 144.33 kWh/(m²rok)
Technologia i rodzaj zabudowy
| ściany: | POROTHERM 38 cm |
| stropy: | żelbetowe, wylewane |
| dach: | dachówka, kąt nachylenia 40° |
| ogrzewanie: |
Rysunki szczegółowe
Rysunki zostaną przesłane na podany adres e-mail.
Adaptacja projektu
wraz z projektem zagospodarowania działki
W celu uzyskania pozwolenia na budowę należy dokonać adaptacji projektu do warunków miejscowych oraz uzupełnić go o projekt zagospodarowania działki.
Jeżeli jesteś zainteresowany adaptacją projektu w naszym biurze wyślij zapytanie.
Orientacyjne koszty budowy
Bezpłatny PAKIET DODATKÓW
Budowa domu - bezpłatna wycena firmy Wolf Haus
Bezpłatna wycena poszczególnych etapów budowy



Opis do projektu Kaśka
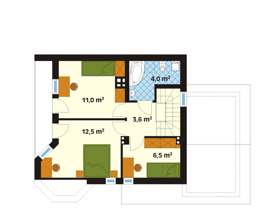
Nieduży dom parterowy z poddaszem użytkowym i garażem, przeznaczony dla 3 – 4-osobowej rodziny.Na parterze zaprojektowano pokój dzienny z kominkiem połączony w jedną przestrzeń z kuchnią i jadalnią.Jadalnia umieszczona jest w efektownym wykuszu.Na poddaszu znajdują się trzy sypialnie i łazienka.
Mam, troszkę zmieniłam. Nad garażem mam sypialnie, a zamiast garażu drzwi balkonowe i pokoj. Na 4 osoby dom super!!!
Wybudowałem 7 lat temu w Szczyrku. Trochę zmieniłem, 2 pełne łazienki i duży p.pokoj.
bardzo ciekawy i funkcjonalny projekt domu,polecam bo mieszkamy, a jesteśmy rodzina czteroosobową