Projekt domu Pik 2

Autor projektu arch. Maciej Matłowski
Projekt domu
Pik 2
5 349 zł 4 949 zł
Najniższa cena 30 dni przed promocją 4849 zł
Do końca PROMOCJI pozostało
Kosztorys
-200
Dziennik
GRATIS !
  • Dostępny w 5-7 dni
  • Bezpłatna wysyłka
  • Zwrot/wymiana 14 dni

Porozmawiaj o projekcie

wyślij pytanie

Dane techniczne

  • powierzchnia użytkowa 132.05 m²
  • powierzchnia garażu 31.99 m²
  • powierzchnia zabudowy 133.78 m²
  • powierzchnia dachu 226.00 m²
  • kubatura 800.00 m³
  • wysokość 8.73 m
  • min. gabaryty działki 23.65 × 19.75 m
  • EP 59.92 kWh/(m²rok)

Technologia i rodzaj zabudowy

zabudowa: jednorodzinny z użytkowym poddaszem
ściany: 2-warstwowe - pustak ceramiczny + styropian
stropy: żelbetowe, wylewane
dach: dachówka ceramiczna CREATON, kąt nachylenia 40°
ogrzewanie: gazowe

Parter

Projekt domu Pik 2 - rzut parteru

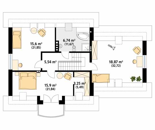
Poddasze

Projekt domu Pik 2 - rzut poddasza

Usytuowanie na działce:

Projekt domu Pik 2 - usytuowanie na działce
pobierz rzut 1:500
rysunki szczegółowe ikona

Rysunki szczegółowe

Jeśli chcesz otrzymać bezpłatne rysunki szczegółowe tego projektu, wypełnij formularz.
Rysunki zostaną przesłane na podany adres e-mail.
Jeśli jesteś naszym Partnerem i chcesz pobrać rysunki szczegółowe - kliknij tutaj »
Pobierz bezpłatnie
radaptacja projektu ikona

Adaptacja projektu
wraz z projektem zagospodarowania działki

W celu uzyskania pozwolenia na budowę należy dokonać adaptacji projektu do warunków miejscowych oraz uzupełnić go o projekt zagospodarowania działki.


Jeżeli jesteś zainteresowany adaptacją projektu w naszym biurze wyślij zapytanie.

Wyślij pytanie
koszty budowy ikona

Orientacyjne koszty budowy

Poziom cen netto: Sekocenbud I kw 2010, dostawcy, producenci
9%
67%
24%
stolarka okienna i drzwiowa
15 198 zł
stan surowy otwarty
(ściany konstrukcyjne i działowe, konstrukcja dachu z pokryciem)
114 333 zł
stan zerowy
(fundamenty i ściany fundamentowe)
40 074 zł
∑ =
stan surowy zamknięty
(bez instalacji)
169 605 zł
Pobierz szacunkowe koszty budowy
ZOBACZ ZESTAWIENIE MATERIAŁÓW

Bezpłatny PAKIET DODATKÓW

dodatek Rzut w skali 1:500
Rzut w skali 1:500
pobierz
dodatek Charakterystyka energetyczna
Charakterystyka energetyczna
dodatek Zgoda na zmiany
Zgoda na zmiany
dodatek Dziennik budowy
Dziennik budowy
dodatek BIOZ
BIOZ

Dodatki w DOBREJ CENIE

Zamów razem z projektem
dodatek Kosztorys budowlany
Kosztorys budowlany
600zł 400
dodatek Dodatkowy egzemplarz projektu
Dodatkowy egzemplarz projektu
1605
dodatek Elektroniczna wersja projektu
Elektroniczna wersja projektu
802
dodatek Schemat szamba
Schemat szamba
70zł 60
dodatek Schemat rekuperacji
Schemat rekuperacji
650
dodatek Pompa ciepła
Pompa ciepła
Na zapytanie
logo New House

Pobierz wycenę w 3 minuty

Bezpłatna wycena
logo Wolf Haus

Budowa domu - bezpłatna wycena firmy Wolf Haus

Zapraszamy Państwa do wypełnienia poniższego formularza. Dzięki niemu przygotujemy Państwu pełną ofertę na budowę wymarzonego domu.
Bezpłatna wycena

Bezpłatna wycena poszczególnych etapów budowy

System grzewczy
grafika Viessmann
wypełnij
Więźba dachowa
grafika Mitek
wypełnij
Zmiany w projekcie
grafika Mtmstyl
wypełnij

Opis do projektu Pik 2

Mały dom mieszkalny, jednorodzinny.Na parterze zaprojektowano dodatkowy pokój.Na poddaszu znajdują się trzy przestrzenne pokoje.Wygodny dom dla 5-osobowej rodziny.

Inne wersje projektu Pik 2

Projekty podobne do projektu Pik 2

Komentarze o projekcie

  • + Dodaj zdjęcia
  • Chcę otrzymywać prywatne wiadomości
  • Realizując obowiązek Administratora określony w treści art. 13 Rozporządzenia Parlamentu Europejskiego i Rady (UE) 2016/679 z dnia 27 kwietnia 2016 r. w sprawie ochrony osób fizycznych w związku z przetwarzaniem danych osobowych i w sprawie swobodnego przepływu takich danych oraz uchylenia Dyrektywy 95/46/WE (ogólne rozporządzenie o ochronie danych, RODO) (Dz.Urz.UE.L Nr 119, str. 1, ze zm.), informuję iż: rozwiń