Projekt domu Plus
- Dostępny w 5 dni
- Bezpłatna wysyłka
- Zwrot/wymiana 14 dni
- Drukuj kartę projektu
-
Dodaj do ulubionych
- Porównaj ulubione
PROJEKT W SPECJALNEJ CENIE
Prezentowany projekt na skutek ciągle zmieniających się warunków technicznych wymaga nieco więcej nakładu pracy przy adaptacji do działki. Polega to głównie na pogrubieniu izolacji cieplnej budynku oraz częściowym przeredagowaniu opisu. Projekt wciąż cieszy się zainteresowaniem dlatego jest dostępny w specjalnej cenie.
Dane techniczne
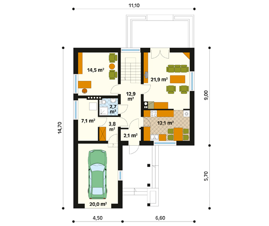
- powierzchnia użytkowa 152.90 m²
- powierzchnia garażu 20.00 m²
- powierzchnia zabudowy 141.90 m²
- powierzchnia dachu 245.00 m²
- kubatura 761.36 m³
- wysokość 8.65 m
- EP 108.66 kWh/(m²rok)
Technologia i rodzaj zabudowy
| ściany: | 1-warstwowe - bloczek z betonu komórkowego 42 cm |
| stropy: | żelbetowe, wylewane |
| dach: | dachówka, kąt nachylenia 43° |
| ogrzewanie: |
Rysunki szczegółowe
Rysunki zostaną przesłane na podany adres e-mail.
Adaptacja projektu
wraz z projektem zagospodarowania działki
W celu uzyskania pozwolenia na budowę należy dokonać adaptacji projektu do warunków miejscowych oraz uzupełnić go o projekt zagospodarowania działki.
Jeżeli jesteś zainteresowany adaptacją projektu w naszym biurze wyślij zapytanie.
Bądź pierwszą osobą, która zamówi kosztorys do projektu Plus.
Zadzwoń: 577 007 206
Cena kosztorysu dla projektu Plus wynosi 600 zł.
Ten dodatkowy koszt z pewnością znacząco nie nadszarpnie budżetu inwestycji, a pozwoli precyzyjnie wycenić poszczególne etapy prac budowlanych oraz będzie przydatne w negocjacjach z wykonawcą. Kosztorys może być również podstawą do ubiegania się o kredyt hipoteczny. Narzędzie to pozwala stworzyć harmonogram prac ściśle powiązany z własnymi możliwościami finansowymi. Zaletą kosztorysu w wersji elektronicznej jest to, że pozwala na wprowadzanie pewnych zmian i dostosowanie kosztów do własnych potrzeb, daje również możliwość skorygowania cen materiałów i robocizny w zależności od miejsca budowy.
Kosztorys budowlany zawiera:- tabelę elementów, która przedstawia poszczególne etapy budowy wraz z ich kosztami,
- przedmiar, który obejmuje zestawienie wszystkich prac związanych z budową wraz z kosztami i ilościami,
- zestawienie materiałów potrzebnych do budowy,
- zestawienie robocizny, które obejmuje wynagrodzenie wszystkich robotników wraz z kosztami ich pracy,
- zestawienie sprzętu, które obejmuje wszystkie maszyny budowlane biorące udział przy budowie domu, wraz z kosztami ich wynajmu oraz czasu pracy.
Kosztorys budowlany uwzględnia wyłącznie część budowlaną robót – bez instalacji. Instalacje zostały uwzględnione jedynie wskaźnikowo w tabelach elementów zapisanych w formacie programu Excel.
Bezpłatny PAKIET DODATKÓW
Budowa domu - bezpłatna wycena firmy Wolf Haus
Bezpłatna wycena poszczególnych etapów budowy



Opis do projektu Plus
Parterowy, niepodpiwniczony dom z użytkowym poddaszem.Parter z dwoma pokojami, zadaszonym wejściem i przybudowanym garażem.Prosty, czytelny układ poddasza z trzema sypialniami i łazienką połączoną z garderobą.