Projekt domu Polana dr-S
- Dostępny w 24H
- Bezpłatna wysyłka
- Zwrot/wymiana 14 dni
- Regulamin promocji >>
- Drukuj kartę projektu
-
Dodaj do ulubionych
- Porównaj ulubione
Dane techniczne
- powierzchnia użytkowa 373.19 m²
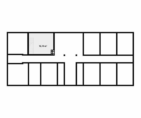
- powierzchnia piwnicy 16.14 m²
- powierzchnia zabudowy 278.67 m²
- powierzchnia dachu 416.00 m²
- kubatura 861.09 m³
- wysokość 7.08 m
- EP 67.47 kWh/(m²rok)
Technologia i rodzaj zabudowy
| zabudowa: | jednorodzinny z użytkowym poddaszem |
| ściany: | szkielet drewniany |
| stropy: | na belkach drewnianych |
| dach: | dachówka bitumiczna, kąt nachylenia 30° |
| ogrzewanie: | gazowe, olejowe |
Rysunki szczegółowe
Rysunki zostaną przesłane na podany adres e-mail.
Adaptacja projektu
wraz z projektem zagospodarowania działki
W celu uzyskania pozwolenia na budowę należy dokonać adaptacji projektu do warunków miejscowych oraz uzupełnić go o projekt zagospodarowania działki.
Jeżeli jesteś zainteresowany adaptacją projektu w naszym biurze wyślij zapytanie.
Orientacyjne koszty budowy
Bezpłatny PAKIET DODATKÓW
Budowa domu - bezpłatna wycena firmy Wolf Haus
Bezpłatna wycena poszczególnych etapów budowy



Opis do projektu Polana dr-S
Przestronny, podpiwniczony dom mieszkalny utrzymany w klimacie architektury dworkowej. Istnieje możliwość adaptacji budynku na pensjonat np. agroturystyczny. Na poddaszu znajduje się przestronna, otwarta przestrzeń przeznaczona do dowolnej aranżacji, np. na pomieszczenie hobby lub dodatkowe pokoje gościnne. Główną część parteru stanowią spory salon z wyjściem na taras oraz kuchnia z jadalnią. Oprócz tego w obrębie parteru zaprojektowano dziewięć sypialni, dwie ogólnodostępne łazienki i garderobę. Dwie sypialnie zostały wyposażone w oddzielne łazienki, a dwie inne we własne garderoby.