Projekt domu Poranek
- Dostępny w 24H
- Bezpłatna wysyłka
- Zwrot/wymiana 14 dni
- Regulamin promocji >>
- Drukuj kartę projektu
-
Dodaj do ulubionych
- Porównaj ulubione
Dane techniczne
- powierzchnia użytkowa 169.97 m²
- powierzchnia zabudowy 126.16 m²
- powierzchnia dachu 225.00 m²
- kubatura 846.36 m³
- wysokość 8.51 m
- EP 68.45 kWh/(m²rok)
Technologia i rodzaj zabudowy
| zabudowa: | jednorodzinny z użytkowym poddaszem |
| ściany: | 2-warstwowe - pustak ceramiczny + styropian |
| stropy: | żelbetowe, wylewane |
| dach: | dachówka ceramiczna CREATON, kąt nachylenia 42° |
| ogrzewanie: | gazowe, olejowe |
Rysunki szczegółowe
Rysunki zostaną przesłane na podany adres e-mail.
Adaptacja projektu
wraz z projektem zagospodarowania działki
W celu uzyskania pozwolenia na budowę należy dokonać adaptacji projektu do warunków miejscowych oraz uzupełnić go o projekt zagospodarowania działki.
Jeżeli jesteś zainteresowany adaptacją projektu w naszym biurze wyślij zapytanie.
Orientacyjne koszty budowy
Bezpłatny PAKIET DODATKÓW
Pobierz wycenę w 3 minuty
Budowa domu - bezpłatna wycena firmy Wolf Haus
Bezpłatna wycena poszczególnych etapów budowy



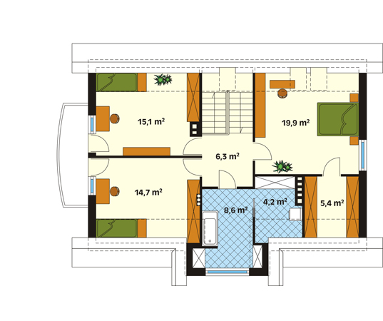
Opis do projektu Poranek
Poranek to projekt domu jednorodzinnego bez piwnicy, posiadający użytkowe poddasze. Zaprojektowany z myślą o 4-osobowej rodzinie, która nade wszystko ceni sobie przestrzeń. Prosta bryła budynku czyni go łatwym w budowie oraz ekonomicznym w późniejszym utrzymaniu, a przy tym spełnia on wszelkie aktualne normy (wskaźnik EP 68,45). Na parterze projektu Poranek znajduje się duży salon i otwarta kuchnia, przy której przewidziano miejsce na jadalnię, ubikacja oraz sypialnia z prywatną łazienką. Na poddaszu zaplanowano łazienkę z pralnią oraz trzy wygodne sypialnie. Za sprawą ozdobnych kolumn projekt Poranek z zewnątrz przypomina urokliwy dworek.