Projekt domu Solo 2
- Dostępny w 5 dni
- Bezpłatna wysyłka
- Zwrot/wymiana 14 dni
- Drukuj kartę projektu
-
Dodaj do ulubionych
- Porównaj ulubione
PROJEKT W SPECJALNEJ CENIE
Prezentowany projekt na skutek ciągle zmieniających się warunków technicznych wymaga nieco więcej nakładu pracy przy adaptacji do działki. Polega to głównie na pogrubieniu izolacji cieplnej budynku oraz częściowym przeredagowaniu opisu. Projekt wciąż cieszy się zainteresowaniem dlatego jest dostępny w specjalnej cenie.
Dane techniczne
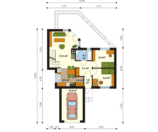
- powierzchnia użytkowa 102.10 m²
- powierzchnia garażu 16.90 m²
- powierzchnia zabudowy 103.30 m²
- powierzchnia dachu 183.90 m²
- kubatura 480.00 m³
- wysokość 7.59 m
- EP 133.53 kWh/(m²rok)
Technologia i rodzaj zabudowy
| ściany: | 2-warstwowe - pustak ceramiczny + styropian |
| stropy: | gęstożebrowe AKERMAN |
| dach: | dachówka, kąt nachylenia 38° |
| ogrzewanie: |
Rysunki szczegółowe
Rysunki zostaną przesłane na podany adres e-mail.
Adaptacja projektu
wraz z projektem zagospodarowania działki
W celu uzyskania pozwolenia na budowę należy dokonać adaptacji projektu do warunków miejscowych oraz uzupełnić go o projekt zagospodarowania działki.
Jeżeli jesteś zainteresowany adaptacją projektu w naszym biurze wyślij zapytanie.
Orientacyjne koszty budowy
Bezpłatny PAKIET DODATKÓW
Budowa domu - bezpłatna wycena firmy Wolf Haus
Bezpłatna wycena poszczególnych etapów budowy



Opis do projektu Solo 2
Mały dom jednorodzinny lub letniskowy, przeznaczony na wąską działkę.Idealny dla 2 – 4 osób.Niewielkie poddasze, nadające się na pomieszczenia rekreacyjne, można zaadaptować na dodatkową sypialnię z łazienką i garderobą.