Pawilon usługowy H1

Autor projektu arch. Maciej Matłowski
Pawilon usługowy H1
2 650 zł 1 325 zł
  • Dostępny w 5 dni
  • Bezpłatna wysyłka
  • Zwrot/wymiana 14 dni

Porozmawiaj o projekcie

wyślij pytanie
-50%

PROJEKT W SPECJALNEJ CENIE
Prezentowany projekt na skutek ciągle zmieniających się warunków technicznych wymaga nieco więcej nakładu pracy przy adaptacji do działki. Polega to głównie na pogrubieniu izolacji cieplnej budynku oraz częściowym przeredagowaniu opisu. Projekt wciąż cieszy się zainteresowaniem dlatego jest dostępny w specjalnej cenie.

Dane techniczne

  • powierzchnia użytkowa 52.30 m²
  • powierzchnia zabudowy 65.80 m²
  • powierzchnia dachu 96.00 m²
  • kubatura 216.00 m³
  • wysokość 5.22 m
  • min. gabaryty działki 16.86 × 17.86 m

Technologia i rodzaj zabudowy

zabudowa: pawilon
ściany: 2-warstwowe - pustak ceramiczny + styropian
stropy: żelbetowe, wylewane
dach: dachówka bitumiczna, kąt nachylenia 20°
ogrzewanie: elektryczne

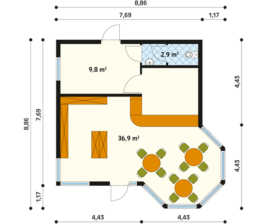
Parter

Pawilon usługowy H1 - rzut parteru

Usytuowanie na działce:

Pawilon usługowy H1 - usytuowanie na działce
rysunki szczegółowe ikona

Rysunki szczegółowe

Jeśli chcesz otrzymać bezpłatne rysunki szczegółowe tego projektu, wypełnij formularz.
Rysunki zostaną przesłane na podany adres e-mail.
Jeśli jesteś naszym Partnerem i chcesz pobrać rysunki szczegółowe - kliknij tutaj »
Pobierz bezpłatnie
radaptacja projektu ikona

Adaptacja projektu
wraz z projektem zagospodarowania działki

W celu uzyskania pozwolenia na budowę należy dokonać adaptacji projektu do warunków miejscowych oraz uzupełnić go o projekt zagospodarowania działki.


Jeżeli jesteś zainteresowany adaptacją projektu w naszym biurze wyślij zapytanie.

Wyślij pytanie
koszty budowy ikona

Orientacyjne koszty budowy

Poziom cen netto: Sekocenbud I kw 2011, dostawcy, producenci
13%
56%
31%
stolarka okienna i drzwiowa
12 103 zł
stan surowy otwarty
(ściany konstrukcyjne i działowe, konstrukcja dachu z pokryciem)
50 773 zł
stan zerowy
(fundamenty i ściany fundamentowe)
28 405 zł
∑ =
stan surowy zamknięty
(bez instalacji)
91 281 zł
Pobierz szacunkowe koszty budowy
ZOBACZ ZESTAWIENIE MATERIAŁÓW

Bezpłatny PAKIET DODATKÓW

dodatek Rzut w skali 1:500
Rzut w skali 1:500
dodatek Charakterystyka energetyczna
Charakterystyka energetyczna
dodatek Zgoda na zmiany
Zgoda na zmiany
dodatek Dziennik budowy
Dziennik budowy
dodatek BIOZ
BIOZ

Dodatki w DOBREJ CENIE

Zamów razem z projektem
dodatek Kosztorys budowlany
Kosztorys budowlany
500zł 300
dodatek Dodatkowy egzemplarz projektu
Dodatkowy egzemplarz projektu
795
dodatek Elektroniczna wersja projektu
Elektroniczna wersja projektu
398
dodatek Schemat szamba
Schemat szamba
70zł 60
dodatek Schemat rekuperacji
Schemat rekuperacji
600
dodatek Pompa ciepła
Pompa ciepła
Na zapytanie
logo Wolf Haus

Budowa domu - bezpłatna wycena firmy Wolf Haus

Zapraszamy Państwa do wypełnienia poniższego formularza. Dzięki niemu przygotujemy Państwu pełną ofertę na budowę wymarzonego domu.
Bezpłatna wycena

Bezpłatna wycena poszczególnych etapów budowy

System grzewczy
grafika Viessmann
wypełnij
Więźba dachowa
grafika Mitek
wypełnij
Zmiany w projekcie
grafika Mtmstyl
wypełnij

Opis do projektu Pawilon usługowy H1

Niewielki pawilon handlowo-usługowy. Posiada zaplecze magazynowe i sanitarne.

Projekty podobne do projektu Pawilon usługowy H1

Komentarze o projekcie

  • + Dodaj zdjęcia
  • Chcę otrzymywać prywatne wiadomości
  • Realizując obowiązek Administratora określony w treści art. 13 Rozporządzenia Parlamentu Europejskiego i Rady (UE) 2016/679 z dnia 27 kwietnia 2016 r. w sprawie ochrony osób fizycznych w związku z przetwarzaniem danych osobowych i w sprawie swobodnego przepływu takich danych oraz uchylenia Dyrektywy 95/46/WE (ogólne rozporządzenie o ochronie danych, RODO) (Dz.Urz.UE.L Nr 119, str. 1, ze zm.), informuję iż: rozwiń