Projekt Gościniec
- Projekt na zapytanie
- Bezpłatna wysyłka
- Zwrot/wymiana 14 dni
- Drukuj kartę projektu
-
Dodaj do ulubionych
- Porównaj ulubione
Z uwagi na konieczną aktualizację dokumentacji technicznej do WT2021 i Eurokodów prezentowane na stronie dane techniczne i ceny mogą ulec zmianie.
Dane techniczne
- powierzchnia użytkowa 947.60 m²
- powierzchnia zabudowy 667.30 m²
- powierzchnia dachu 1032.00 m²
- kubatura 4400.00 m³
- wysokość 9.37 m
Technologia i rodzaj zabudowy
| zabudowa: | pensjonat |
| ściany: | 3-warstwowe - pustak ceramiczny + styropian |
| stropy: | żelbetowe, wylewane |
| dach: | dachówka ceramiczna, kąt nachylenia 35° |
| ogrzewanie: | gazowe |
Rysunki szczegółowe
Rysunki zostaną przesłane na podany adres e-mail.
Adaptacja projektu
wraz z projektem zagospodarowania działki
W celu uzyskania pozwolenia na budowę należy dokonać adaptacji projektu do warunków miejscowych oraz uzupełnić go o projekt zagospodarowania działki.
Jeżeli jesteś zainteresowany adaptacją projektu w naszym biurze wyślij zapytanie.
Bądź pierwszą osobą, która zamówi kosztorys do projektu Gościniec.
Zadzwoń: 577 007 206
Ten dodatkowy koszt z pewnością znacząco nie nadszarpnie budżetu inwestycji, a pozwoli precyzyjnie wycenić poszczególne etapy prac budowlanych oraz będzie przydatne w negocjacjach z wykonawcą. Kosztorys może być również podstawą do ubiegania się o kredyt hipoteczny. Narzędzie to pozwala stworzyć harmonogram prac ściśle powiązany z własnymi możliwościami finansowymi. Zaletą kosztorysu w wersji elektronicznej jest to, że pozwala na wprowadzanie pewnych zmian i dostosowanie kosztów do własnych potrzeb, daje również możliwość skorygowania cen materiałów i robocizny w zależności od miejsca budowy.
Kosztorys budowlany zawiera:- tabelę elementów, która przedstawia poszczególne etapy budowy wraz z ich kosztami,
- przedmiar, który obejmuje zestawienie wszystkich prac związanych z budową wraz z kosztami i ilościami,
- zestawienie materiałów potrzebnych do budowy,
- zestawienie robocizny, które obejmuje wynagrodzenie wszystkich robotników wraz z kosztami ich pracy,
- zestawienie sprzętu, które obejmuje wszystkie maszyny budowlane biorące udział przy budowie domu, wraz z kosztami ich wynajmu oraz czasu pracy.
Kosztorys budowlany uwzględnia wyłącznie część budowlaną robót – bez instalacji. Instalacje zostały uwzględnione jedynie wskaźnikowo w tabelach elementów zapisanych w formacie programu Excel.
Budowa domu - bezpłatna wycena firmy Wolf Haus
Bezpłatna wycena poszczególnych etapów budowy



Opis do projektu Gościniec
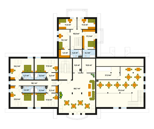
Gościniec to wyjątkowy projekt pensjonatu z użytkowym poddaszem oraz wydzielonym mieszkaniem z niezależnym wejściem. Wygląd budynku nawiązuje do staropolskich dworków. Rozłożysta bryła budynku, przykryta dwuspadowym dachem z naczółkami została pokryta dachówką ceramiczną w ceglastym kolorze. Budynek wyróżniają trzy duże lukarny na dachu, okna ze szprosami oraz wejście główne wsparte na kolumnach, które dodatkowo podkreślają tradycyjny charakter pensjonatu. Cały budynek wykończono w jasnym kolorze, na tle którego wybija się biała stolarka oraz białe elementy wykończenia.
Część restauracyjna z bazą noclegową
Reprezentacyjne wejście główne do budynku zostało zaprojektowane w podcieniu, który dodatkowo zdobi sześć kolumn tworząc zadaszoną przestrzeń wejściową. Wejście główne prowadzi do holu, który dzieli parter budynku na dwa skrzydła. W holu wydzielono miejsce na recepcję, szatnię, poczekalnię dla gości oraz łazienki. Jedno ze skrzydeł budynku pełni funkcję rekreacyjną. Znajduje się w nim część restauracyjna z barem oraz antresolą. W celu zapewnienia sprawnej obsługi gości, przy restauracji znajduje się dobrze zorganizowane zaplecze kuchenne oraz techniczne z oddzielnym wejściem zewnętrznym, ułatwiającym dostawę zaopatrzenia.
Rozbudowana baza noclegowa
W drugim skrzydle budynku zaprojektowano część noclegową. Na parterze znajduje się osiem dwuosobowych pokoi gościnnych z łazienkami. Na poddaszu zaprojektowano dodatkowe cztery duże pokoje. Każdy z nich posiada łazienkę z wanną oraz mały hol z pojemną szafą wnękową. W głównym pomieszczeniu znajduje się podwójne łóżko oraz zestaw meblowy przeznaczony do pracy lub odpoczynku. Wszystkie pokoje zostały dobrze doświetlone, zapewniając gościom komfortowy wypoczynek i przestrzeń potrzebną do wygodnego funkcjonowania. W centralnym miejscu na poddaszu znajduje się przestronny hol z miejscem do odpoczynku dla gości. Zaprojektowany centralnie nad wejściem głównym, posiada wyjście na balkon dzięki czemu jest idealnym miejscem do lektury książki bądź spotkania w gronie znajomych.
Niezależna część mieszkalna
W wydzielonej części budynku, zlokalizowanej od strony ogrodu znajduje się niezależne mieszkanie z użytkowym poddaszem, dostosowane do potrzeb kilkuosobowej rodziny. Mieszkanie posiada niezależne zewnętrzne wejście prowadzące do części dziennej na parterze. Znajduje się tam przestronny salon połączony z jadalnią oraz otwartą kuchnią. Dodatkowo na parterze zaprojektowano łazienkę, pomieszczenie kotłowni oraz gabinet, który można przeznaczyć na dodatkową sypialnię, Na poddaszu znajdują się cztery sypialnie oraz główna łazienka. Największa z sypialni posiada oddzielną łazienkę oraz balkon. Dwa mniejsze pokoje posiadają wyjście na wspólny balkon od strony ogrodu, który stanowi równocześnie zadaszenie tarasu na parterze. Czwarta z sypialni posiada wydzieloną garderobę, którą można przekształcić na łazienkę. Gościniec jest idealnym miejscem do prowadzenia działalności agroturystycznej, w którym na co dzień mieszkają właściciele i jednocześnie przyjmują gości, bądź organizują imprezy okolicznościowe.